端午节将近,你有没有准备回家过节呢,想带个朋友回家过节,可是家里没有多余的地方住,这可真是有点小尴尬。长沙装饰金煌小编介绍的这套四房一厅装修案例可以很好地解决这个问题。设计师通过两道墙分离出厨房,客厅和办公区域,创造一个更明亮、更宽敞的空间。
设计重点:200平米的空间、四房一厅的户型设计,设计师通过玻璃、几何形状和实木等要素的设计,打造了一个别具特色、亮堂的公寓设计。
编辑首推空间:餐厅

客厅处看餐厅
长沙装饰推荐理由:将餐厅设立在客厅和卧室中间的位置,餐厅成为通往卧室的过道。但餐厅独树一帜的设计还是别外吸引人的眼球,两边的墙壁设计有亮点!
全套案例详解:

餐厅处看客厅
设计重点:整体协调自然
长沙装饰点评:客厅和餐厅设计风格一致。在整体的设计中,设计师通过对天花线性灯的排列,错落有致将两个空间分开,要素一致又将空间紧密联系。从家具到整体设计,两部分都联系在一起,整体协调自然。

房梁设计
设计重点:房梁设计
长沙装饰点评:淡蓝色的造型装饰,搭配这个沉稳的空间,既不严肃,也不过于活跃,恰到好处。设计师在天花上的巧妙设计令家居别有特色。

沙发
设计重点:灰色沙发+小圆桌
长沙装饰点评:客厅里的大沙发含盖了整个客厅空间,满足多人拜访的坐位需求。小圆桌不占位置,和大沙发的对比,使客厅空间更显宽敞。

餐厅设计
设计重点:餐厅天花
长沙装饰点评:客厅和餐厅同在一片区域内,巧用天花分隔区域,设计有亮点,过渡很自然。黑色镜面的装饰,也令整个空间更加亮堂。

餐厅
设计重点:装饰架
长沙装饰点评:嵌入墙体的装饰架设计,极富构造的设计满足了餐厅装饰的功能,设计富有结构感。

4房装修案例
设计重点:实木餐桌椅
长沙装饰点评:实木方形圆角桌和实木的椅子,让餐厅空间更显质感。

过道设计
设计重点:天花设计
长沙装饰点评:过道两旁的木质墙设计,和天花的中空设计都令这个过道没那么简单。

书房
设计重点:玻璃墙
编辑点评:玻璃墙作为客厅与书房的隔断,玻璃的透明感使得空间并没有太多的封闭感,设计更显辽阔。

天花
设计重点:天花
长沙装饰点评:层次过渡的天花设计,加上灯饰,这个天花设计同样很有亮点。

天花
设计重点:天花
长沙装饰点评:天花木板微翘的设计,营造一种空间立体感。

书房
设计重点:玻璃
编辑点评:书房玻璃通透的设计,使空间没有沉闷封闭的感觉,大胆使用玻璃元素使设计更时尚。

书桌
设计重点:玻璃书桌
长沙装饰点评:巧妙的书桌设计,结合艺术与使用,将这个书房打造得是那么的有品位。

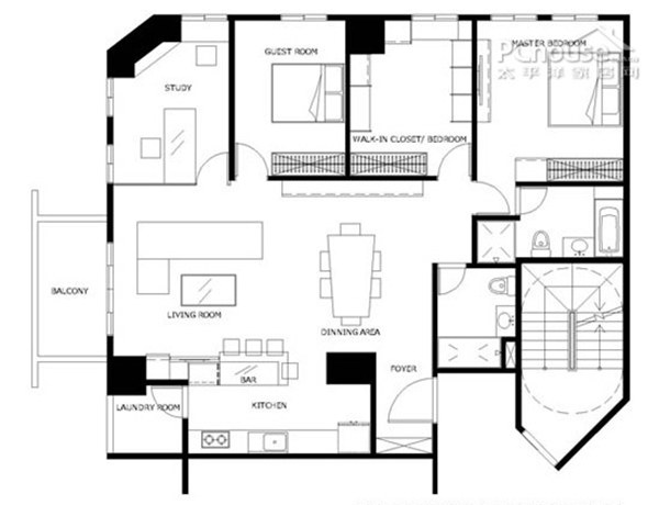
平面设计图
设计重点:空间构造
长沙装饰点评:一进门就看到餐厅,以餐厅为过道,空间结构上有很大的创新,打造时尚的现代家居设计方案。